Панельные здания (на базе LIRA-CAD)
Создание 3D модели панельного здания. В автоматизированном режиме конструирование и расстановка стыков. Расчет конструктивной схемы в линейной и нелинейной (нелинейная работа платформенных стыков) постановке. Анализ результатов расчета в том числе и НДС стыков.
*Цена указана за 1 лицензию
Примечания:
1. Указанные подсистемы работают в среде препроцессора LIRA-CAD (бывший САПФИР).
Панельные здания. Параметрическое проектирование панельных зданий в ЛИРА-САПР
Выполняется построение конструктивной схемы панельного здания, расчет и выдача параметров НДС элементов панельного здания. Реализован удобный интерфейс построения конструктивной и расчетной схемы, основанной на конструировании и расстановке стыков. Разработана пополняемая и редактируемая библиотека типов стыков, которая определяет гибкость системы, т.е. ее быструю адаптацию к новым типам конструктивных элементов.

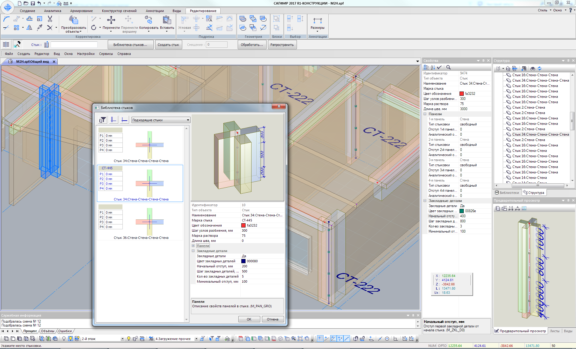
Библиотека стыков в препроцессоре САПФИР

Расстановка связей по закладным в препроцессоре САПФИР
Библиотека включает различные варианты таких типов стыков как платформенный стык, контактный стык, вертикальные стыки стеновых панелей с закладными деталями и без них и др. На основе выбранного типа пользователь составляет конкретные экземпляры стыков и устанавливает их в модель здания.

Разрезка и назначение стыков панелей
Реализован расчет панельных зданий в линейной и нелинейной постановках. В составе библиотеки конечных элементов разработаны новые элементы стыка панелей. Нелинейная постановка позволяет выполнять расчет шаговым методом (моделирование процесса нагружения) и итерационным, основанным на концепции «инженерная нелинейность». Последняя позволяет проводить расчет традиционным способом (расчет на несколько нагружений, составление РСУ и РСН, подбор элементов арматуры, конструктивных элементов стыков и закладных частей) с косвенным учетом нелинейной работы конструкции. В результате расчета выдаются все параметры НДС элементов панельного здания, включая эпюры контактных напряжений в стыках здания.

Детали
Только зарегистрированные клиенты, купившие данный товар, могут публиковать отзывы.






































Отзывы
Отзывов пока нет.