Конструирование и экспертиза ЖБК (на базе LIRA-CAD)
Создание в автоматизированном режиме эскизов рабочих чертежей колонн, балок, диафрагм, плит перекрытий по результатам подбора арматуры в АРМ.
*Цена указана за 1 лицензию
Примечания:
1 Указанные подсистемы работают в среде препроцессора LIRA-CAD (бывший САПФИР).
2 В рамках версии 2025 Экспертиза ЖБК включается во все комплектации как подарок. Начиная с 1 мая 2025 года в рамках версии 2025 так же безвозмездно передается Конструирование ЖБК (распространяется на комплектации PRO, Standard plus, Standard с дополнительными подсистемами).
Конструирование железобетонных конструкций САПФИР-ЖБК
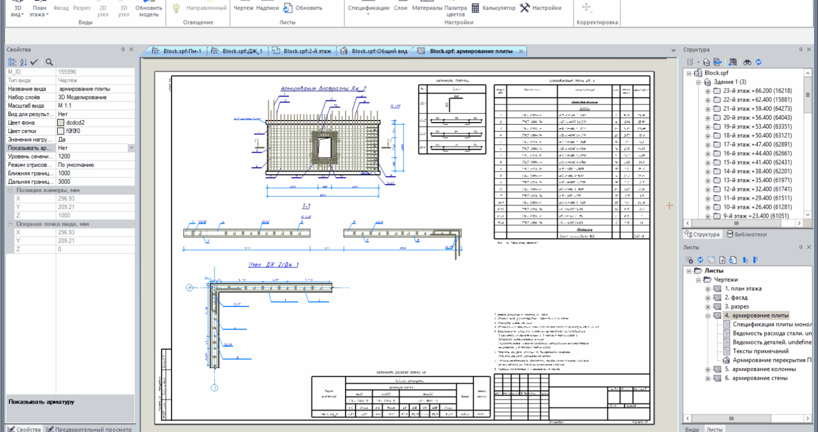
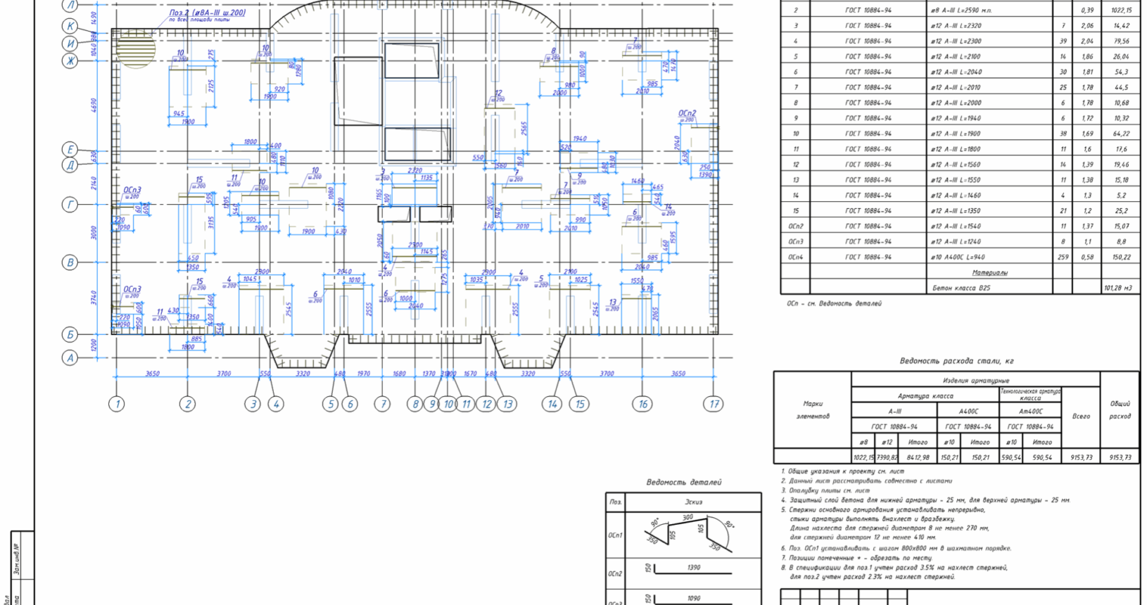
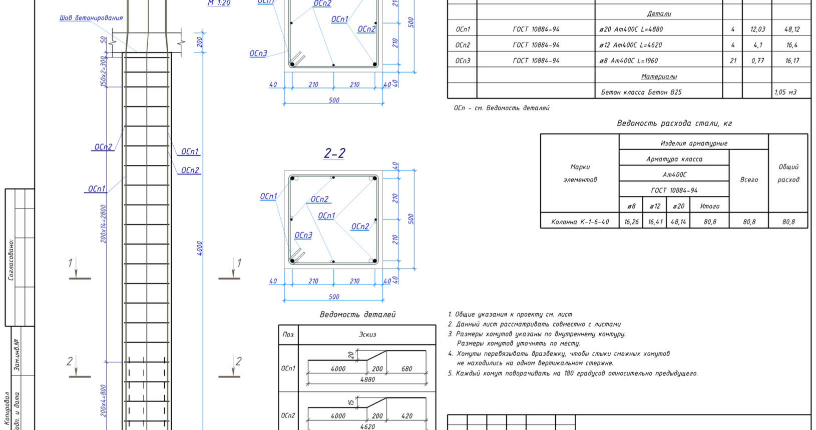
Система позволяет выполнить конструирование и получить рабочие чертежи армирования, спецификацию арматуры, ведомость расхода стали и ведомость деталей для плит перекрытий, диафрагм, колонн и балок.
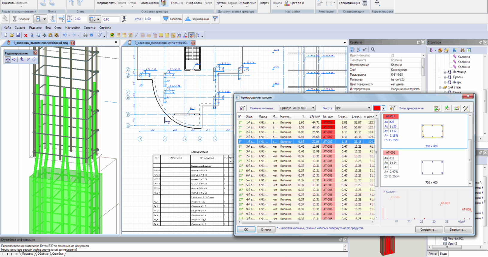
- Конструирование осуществляется в автоматизированном режиме интерактивными графическими методами на основе результатов расчёта армирования, представленных в виде изополей или мозаик площади арматуры.
- Обеспечивается обозначение основного (фонового) армирования и участков раскладки стержней дополнительной арматуры, с указанием их параметров, привязки и примечаний, расчёт анкеровки и учёт перерасхода на перепуск.
САПФИР-ЖБК импортирует результаты расчёта армирования из ПК ЛИРА-САПР и показывает изополя и мозаики армирования в качестве фона для конструируемой плиты перекрытия. Осуществляется настройка шкалы представления результатов и выбор основной арматуры, при этом автоматически изменяются пятна изополей. На фоне изополей конструктор размещает участки дополнительного армирования.
Программа позволяет получить картину недоармирования плиты в виде мозаики. При графическом редактировании дополнительной арматуры мозаика недоармирования изменяется.
Спецификация арматуры
Спецификация арматуры предусматривает возможности унификации позиций, при этом пользователю сообщается цена каждого шага унификации в смысле перерасхода арматуры.
Автоматически формируются листы чертежей – схемы расположения арматуры. На листе опционно могут быть дополнительно размещены: спецификация арматуры, ведомость деталей, ведомость расхода стали.
Подсистема САПФИР-ЖБК полностью интегрирована в ПК САПФИР-3D, переход к армированию указанной плиты перекрытия происходит по нажатию одной кнопки.
Только зарегистрированные клиенты, купившие данный товар, могут публиковать отзывы.















































Отзывы
Отзывов пока нет.