Сталежелезобетон
Расчет конструкций из сталежелезобетонных элементов — колонн и балок с различными конфигурациями жесткой арматуры. Подбор гибкой арматуры в заданных сталежелезобетонных сечениях.
*Цена указана за 1 лицензию
Примечания:
Реализованные нормативные документы для расчета сталежелезобетонных стержневых сечений в текущей версии: СП 266.1325800.2016 и ДСТУ-Н Б В.2.6-185:2012.
Сталежелезобетон. Расчет сталежелезобетонных конструкций в ЛИРА-САПР
Расчет сталежелезобетонных конструкций реализует положения раздела 7 - расчет железобетонных конструкции с жесткой арматурой и расчет трубобетонных конструкции, которые изложены в основных положениях норматива СП 266.1325800.2016.
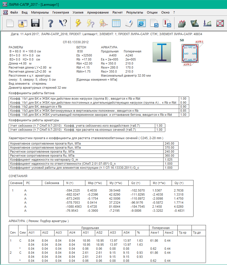
Выполняется расчет и проектирование (на уровне эскизов) элементов (балок, колонн) сталежелезобетонных конструкций. Задаются сечения жёсткой арматуры. Выполняется проверка заданных сечений и при необходимости подбор гибкой арматуры. Реализован широкий набор типов жесткой арматуры.

Виды сечений и способ задания жесткой арматуры в сечении
Реализован эффективный алгоритм подбора и проверки сталежелезобетонного сечения включающего элементы из трех различных материалов: бетон (В30, В40 и др.); жесткая арматура (ВСт3кп и др.); гибкая арматура (А400, А500 и др).
Реализована деформационная теория железобетона. Расчет сталежелезобетонного сечения выполняется на все виды усилий: Мх, Мy, Мkp, N, Qx, Qy.
Результаты расчета сталежелезобетонных конструкций представляются в графическом и табличном виде, аналогично расчету железобетонных конструкций.

Результаты представления подобранной арматуры для сталежелезобетонных конструкций
Элементы сталежелезобетонных конструкций могут быть переданы в локальный режим расчета для более детального анализа и дополнительных исследований.

Локальный режим расчета сталежелезобетонных конструкций

Детали
Только зарегистрированные клиенты, купившие данный товар, могут публиковать отзывы.

































Отзывы
Отзывов пока нет.